Bungalow
Neubau eines Bungalows in Holzständerbau- weise mit anliegendem Carport
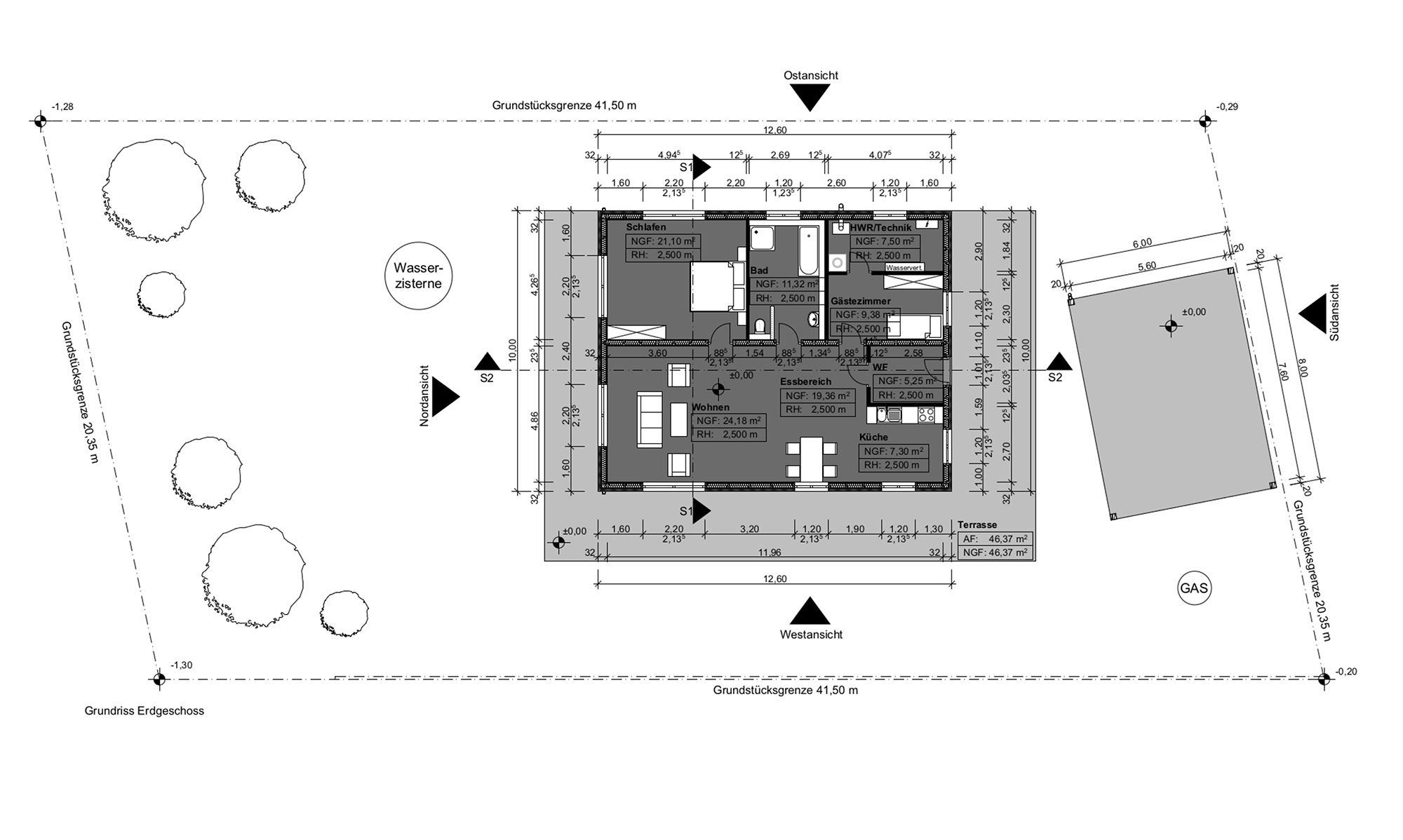
Neubau eines Bungalows in Holzständerbauweise mit anliegendem Carport
Das eingeschossige Gebäude mit zwei höhenversetzten Pultdächern mit unterschiedlicher Dachneigung kann barrierefrei genutzt werden.
Leistungsphase 1 – 4 (Grundlagenermittlung, Vorplanung, Entwurfsplanung, Genehmigungsplanung) zusätzliche besondere Leistungen im Bereich der Genehmigungsplanung
Leistungsphase 1 – 4 (Grundlagenermittlung, Vorplanung, Entwurfsplanung, Genehmigungsplanung) zusätzliche besondere Leistungen im Bereich der Genehmigungsplanung